TIMUE MEULAHÉE karya Yudha Prasetyo, Konsep Hunian Pemulihan Pasca Bencana yang Tumbuh dan Berkelanjutan
YPA Architecture Studio dengan bangga membagikan partisipasi kami dalam Sayembara Wakaf Desain Arsitektur Rumah Pasca Bencana Banjir Sumatera. Program ini merupakan kolaborasi antara Ikatan Arsitek Indonesia (IAI) Jawa Barat dan Yahintara. Dalam kompetisi ini, YPA Architecture Studio diwakili oleh Yudha Prasetyo (No. Peserta P-036) yang menghadirkan sebuah solusi hunian inovatif bagi para penyintas.
Latar Belakang: Menanggapi Krisis Permukiman di Sumatera
Bencana banjir besar dan tanah longsor yang melanda wilayah Sumatera, khususnya di Provinsi Aceh, telah menghancurkan banyak permukiman warga. Kondisi ini menciptakan urgensi akan hunian yang mampu memberikan rasa aman dan martabat paling dasar bagi para penyintas.
Kebutuhan akan hunian pascabencana bukan sekadar tempat bernaung, melainkan ruang yang mendukung kenyamanan psikologis dan privasi keluarga untuk memulai kembali kehidupan mereka. TIMUE MEULAHÉE hadir untuk menjawab tantangan tersebut melalui pendekatan yang realistis dan implementatif.
Konsep Arsitektur: Rumah Tumbuh (Progressive Housing)
TIMUE MEULAHÉE memperkenalkan konsep hunian pemulihan yang dirancang melalui proses pembangunan bertahap sesuai dengan evolusi kebutuhan dan kemampuan ekonomi penghuninya. Strategi ini dibagi menjadi tiga fase utama:
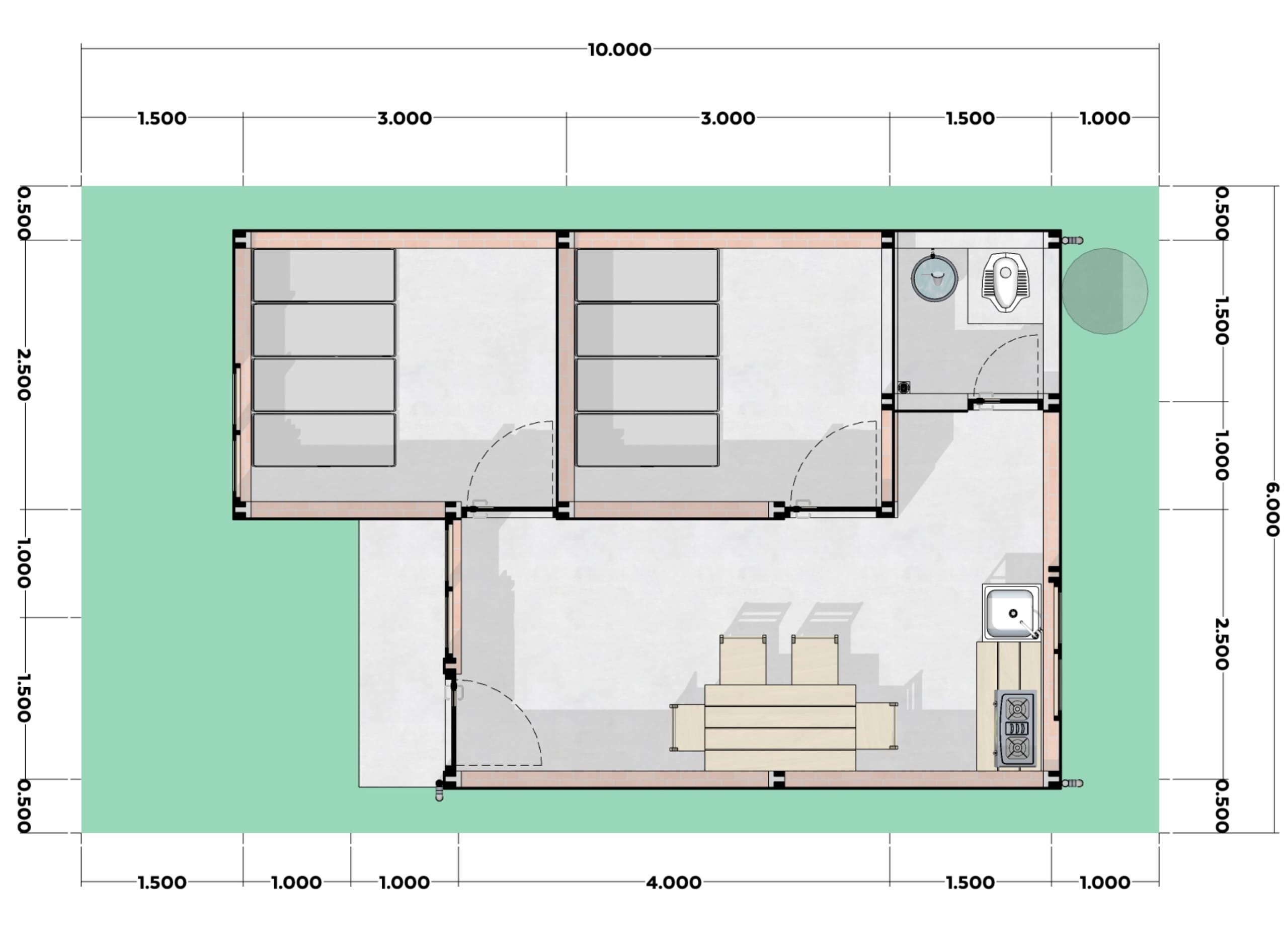
1. Langkah Phon (Fase 1)
Fase ini difokuskan pada pemenuhan fungsi hidup dasar di atas lahan seluas 16 m²:
Ruang Multifungsi: Menyediakan satu ruang kamar untuk aktivitas utama dan tempat tinggal sementara.
Selasar & Dapur: Area transisi yang berfungsi sebagai dapur kecil.
Kamar Mandi: Satu unit kamar mandi untuk memastikan standar sanitasi (MCK) yang layak dan aman.
2. Langkah Keuduwa (Fase 2)
Tahap ini menghadirkan perluasan untuk meningkatkan kualitas hidup keluarga:
Tambahan Kamar: Penambahan satu ruang kamar multifungsi yang lebih lega.
Privasi: Memberikan tambahan privasi bagi setiap anggota keluarga saat beristirahat.
3. Langkah Keulhèe (Fase 3)
Fase final yang memaksimalkan pemanfaatan lahan hingga mencapai total area 36 m²:
Ruang Ekstra: Menghadirkan area berkumpul bersama sebagai ruang ekstra.
Penghubung Sosial: Berfungsi sebagai penghubung antar ruang privat sekaligus menjaga keharmonisan kehidupan rumah tangga dalam jangka panjang.
Solusi Material dan Keberlanjutan
Sebagai bentuk penerapan hidup berkelanjutan, TIMUE MEULAHÉE menggunakan kombinasi material yang tangguh namun ramah lingkungan:
Dinding Bawah: Menggunakan pasangan bata merah dengan finishing plester aci untuk ketahanan bangunan.
Dinding Atas: Memanfaatkan anyaman bambu untuk penutup dinding bagian atas yang juga berfungsi sebagai elemen estetika.
Pemanfaatan Kayu Bekas: Menggunakan papan kayu bekas pascabencana untuk bagian dinding tertentu.
Sirkulasi Udara: Desain menyertakan celah udara pada sisi balok untuk mengeluarkan udara panas agar tidak terperangkap di dalam ruangan.
Interior Efisien: Ruang dapur dilengkapi dengan meja kayu bekas dan sink portable untuk kemudahan instalasi.
TIMUE MEULAHÉE bukan sekadar bangunan, melainkan simbol kebangkitan total dari bencana bagi masyarakat Sumatera.
